《装配式混凝土建筑设计示例(二)》(图集编号:24G124-2)【全文附高清无水印PDF版下载】
图集编号:24G124-2
图集名称:装配式混凝土建筑设计示例(二)
资源类型:国标图集
发布日期:2024-08-01
实施日期:2024-08-01
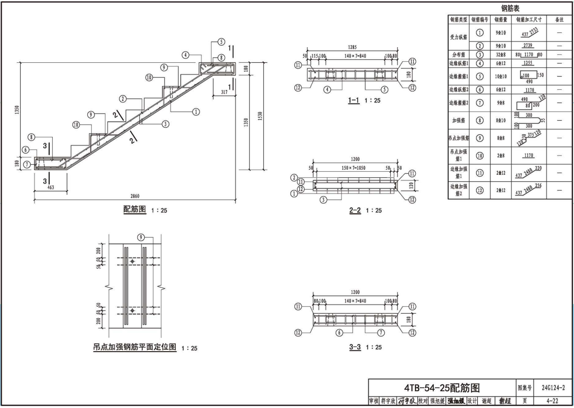
简介:本图集为建筑产业现代化国家建筑标准设计专项编制项目。本图集以上海市某多层装配式框架办公建筑为蓝本,示例装配整体式混凝土框架结构的设计方法,为广大设计、科研及教学人员深入了解装配式混凝土框架结构建筑的标准化设计和集成设计的方法和深度,起到指导和参考作用。本图集主要编制了技术策划、建筑施工图示例、结构施工图示例和构件详图示例四部分内容,并以编者注的形式为读者提供图样提示性说明,呈现编者对内容的编制解读及实际工程设计的注意事项。技术策划介绍了在设计前期,设计单位和建设单位结合项目所在地的政策法规、用地条件、项目定位共同确定项目设计目标并进行技术策划和设计选型的思路。根据设计目标,结合建筑概念方案,对工程的建筑设计、结构系统、外围护系统、设备与管线系统、内装修系统进行相应的技术配置,同时基于系统集成的理念,兼顾标准化设计、专业间协同设计,统筹考虑设计、生产、运输、施工全产业链各环节的协调,最终确定合理的设计选型。本图集的选型策划可为其他类似项目提供参考。建筑施工图示例、结构施工图示例展示了装配整体式结构建筑的施工图设计说明、装配式施工图的表达内容、预制构件的设计及预制构件之间的连接节点构造等内容,可为建筑和结构专业设计提供技术参考与设计思路引导。构件详图示例从设计单位视角出发,展示了构件详图设计说明、预制构件装配平面图、典型构件的模板图、配筋图等,并对机电管线预留预埋、现浇混凝土模板固定预埋及防漏浆、构件起吊等提出设计要求,体现构件详图一体化设计的特点。示例依据相关国家标准规范在原有工程的基础上加以优化调整,重点突出本图集的“示范”作用。本图集编制了典型的装配整体式混凝土框架结构建筑的选型策划;详尽介绍采用集成化、标准化的设计理念开展装配整体式混凝土框架结构建筑的设计,形成了建筑施工图和结构施工图示例;绘制了预制构件详图设计示例,有助于提高设计、生产和施工的协同。示例工程依据设计目标,设计时协同考虑免模免撑和免外架的施工工艺,有利于提高施工效率,充分体现装配式建筑高效建造的优势,对装配式公共建筑的设计和施工具有较好的示范作用。图集为促进建筑业转型升级提供助力,为推动建筑数字化建造和智能制造的发展发挥积极作用。
PDF质量:高清晰无水印PDF版(官方正式版、完整版、原版扫描,共计:95P(页),PDF文档大小:23.8MB)



温馨提示:(本站无需注册或充值,扫码支付后即可获取资源下载链接)
本次捐赠数额为:10.00 元 【点击此处扫码支付】
